29917011_53985539.jpg
29917011_53985253.jpg
29917011_53985251.jpg
29917011_53984747.jpg
29917011_53985540.jpg
29917011_53984683.jpg
29917011_53985459.jpg

For Sale

1 / 7

£425,000

Stortford Road, Bishop’s Stortford

  •   5 Bedrooms
  •   3 Bathrooms
  •   4 Receptions

A fantastic opportunity to acquire a single building plot with planning permission for a detached house of approximately 2,800 sq ft.  Th ...

Share  

Key features

  • Fantastic Opportunity
  • Building Plot
  • 5 Bedroom Detached Home
  • Walking Distance of Village Centre
  • Prestigious Location
  • 5 Mins Drive to Sawbridgeworth Train Station

Full property description

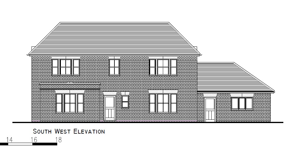
A fantastic opportunity to acquire a single building plot with planning permission for a detached house of approximately 2,800 sq ft.  The plot is approximately 36m x 24.5m and has planning permission for a spacious five bedroom detached house with four reception rooms and a study. Planning reference UTT/17/1490/FUL.

Proposed Accommodation
The accommodation will consist of:

Impressive Entrance Hall

Drawing Room
19' 0" x 16' 0" (5.79m x 4.88m) with doors to garden, fireplace.

Dining Room
16' 0" x 12' 4" (4.88m x 3.76m) with a window to front.

Garden Room
12' 0" x 12' 0" (3.66m x 3.66m) with bi-folding doors to garden, window to rear.

Study
16' 0" x 11' 0" (4.88m x 3.35m) with windows on two aspects.

Kitchen
17' 6" x 17' 0" (5.33m x 5.18m) with a window to side, open through to garden room.

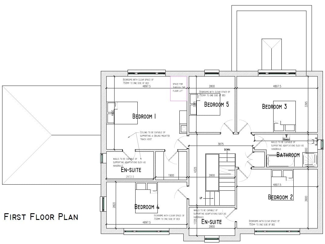
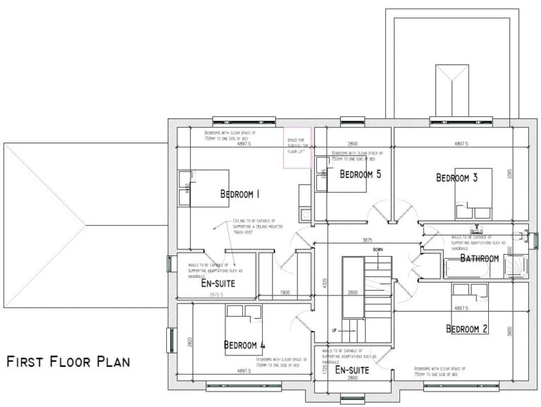
First Floor Half Galleried Landing
With an airing cupboard.

Principal Bedroom
16' 0" x 14' 7" (4.88m x 4.45m) with a window to rear, walk-in wardrobe.

En-Suite
With a window to side

Bedroom 2
16' 0" x 11' 10" (4.88m x 3.61m) with a window to front.

En-Suite
With a window to front.

Bedroom 3
16' 0" x 11' 2" (4.88m x 3.40m) with a window to rear.

Bedroom 4
16' 0" x 9' 2" (4.88m x 2.79m) with windows on two aspects.

Bedroom 5
11' 0" x 9' 0" (3.35m x 2.74m) with a window to rear.

Family Bath/Shower Room
With a window to side.

Outside
The property enjoys a good size overall plot. The rear garden will enjoy a sunny, south westerly aspect with mature trees and hedging. The front of the property will be laid to gravel hard standing, leading to:

Attached spacious Double Garage

Agents Note
Airsource heating and private drainage. The plot is known as Plot 2 as it is part of a 5 plot development.

All viewings strictly by appointment only.

Local Authority
To be confirmed.

Interested in this property?

Why not speak to us about it? Our property experts can give you a hand with booking a viewing, making an offer or just talking about the details of the local area.

Have a property to sell?

Find out the value of your property and learn how to unlock more with a free valuation from your local experts. Then get ready to sell.

Book a valuation

What's nearby?

Directions to this property Print this page

Use one of our helpful calculators

Mortgage calculator
yrs
%

Your approximate mortgage cost is

£0/month

Stamp duty calculator

Stamp duty to pay is

£0