
Under Offer
Guide Price | #REF 26192079
£1,750,000
Town Farm House Cage End, Hatfield Broad Oak, Bishop's Stortford, Essex, CM22 7HT
- 6 Bedrooms
- 4 Bathrooms
- 4 Receptions
#REF 29595854
Marks Hall Lane, Dunmow
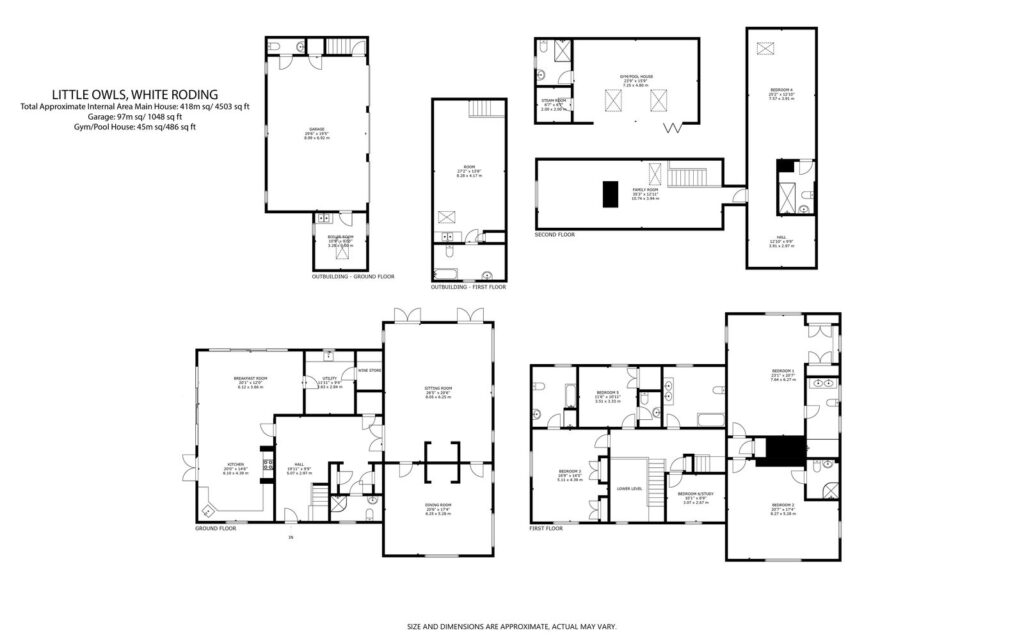
Little Owls is situated in one of the prettiest country lanes in the area. Approached from the White Roding end its tree lined and surrounded by open farmland. The property is set in approximately 5.3 acres of grounds and benefits from lots of useful outbuildings including a triple garage/annexe, gym, steam room, heated pool, all built around the outside entertaining area. The property is approached via double opening electronically operated gates leading to a driveway providing lots of parking. There are views over open countryside and grounds, bespoke handmade kitchen by Excelsior which offers Sub-Zero and Gaggenau appliances, five/six bedrooms with five en-suites, a large living room, sitting room and many character features.
Front Door
A front door with leaded light window beside, leading through into:
Spacious 'L' Shaped Entrance Hall
19' 11" x 9' 9" (6.07m x 2.97m) with an oak and glass staircase rising to the first floor with carpet runner, solid oak flooring, bespoke wine room which is temperature controlled with a glazed door to front.
Walk-In Cloakroom
With two cupboards either side, ideal for coats and shoes etc., one housing the media unit for the property.
Downstairs Cloakroom
Comprising a flush wc, bespoke vanity sink unit with a quartz top and backer, inset enamel sink with a pop-up waste and mixer tap, segment heated towel rail, window to front, tiled flooring.
Large Living Room
26' 5" x 20' 6" (8.05m x 6.25m) a beautifully proportioned room which is well lit by windows on two aspects and double French doors leading to rear patio and entertaining area, feature rustic red brick fireplace with a cast iron burner and oak bressummer with a raised brick hearth, oak flooring.
Cinema Room/Lounge
20' 6" x 17' 4" (6.25m x 5.28m) With windows on three aspects, segment radiator, hidden cinema screen with projector, feature contemporary raised glazed fronted log burner on a slate hearth with an oak bressummer over, solid oak flooring.
Superb 'L' Shaped Kitchen/Family Room
32' 6" (narrowing to 14'6) x 20' 4" (9.91m x 6.20m) with space for all the family with a large dining area lit by sliding doors giving a fine aspect over the garden and the entertaining area, built-in speakers, bespoke hand painted kitchen by Excelsior with a white Aga and Companian, Gaggenau induction hob, Gaggenau double ovens and warming drawer, Villeroy & Boch double sink with a Quooker hot water tap, from the kitchen area there are views over the garden from the French doors to side and window to front, bespoke draws, base and eye level units with an integrated recycling bin, integrated Gaggenau dishwasher, central island unit with plenty of storage, Sub Zero wine chiller and fridge/freezer with ice making facilities, herringbone flooring, larder cupboard with power and LED lighting, bespoke shelving, Nespresso coffee pod drawer.
Utility/Boot Room
11' 11" x 9' 4" (3.63m x 2.84m) with a Villeroy & Boch china sink with a quartz work surface and matching base and eye level units, recess for both washer and dryer, window to rear, bespoke seating area with built-in storage, cloaks hanging space, herringbone flooring.
Plant Room
With a Megaflo cylinder, CCTV camera, water softener, media equipment.
First Floor Part Galleried Landing
With exposed timbers, oak staircase rising to the second floor, airing cupboard.
Bedroom 1
23' 1" x 20' 7" (7.04m x 6.27m) a large ‘L’ shaped room with views over the garden and farmland beyond from three different windows, bespoke range of wardrobes, ceiling speakers, feature brick fireplace.
Luxury En-Suite Shower Room
A room with a view with two windows giving fine views over the farmland. Comprising a walk-in shower cubicle with mixer and hand held shower, flush wc, double china bowl sink on a vanity unit with a mixer tap, heated towel rail, ceramic tiled flooring.
Bedroom 2
17' 4" x 10' 7" (5.28m x 3.23m) with fine views over farmland, feature brick fireplace.
En-Suite Shower Room
Comprising a glazed shower cubicle with a wall mounted double headed shower, flush wc, wall mounted vanity sink unit, complementary mosaic tiled surrounds, ceramic tiled flooring, window to front giving fine views, heated towel rail.
Bedroom 3
16' 9" x 14' 5" (5.11m x 4.39m) with windows on two aspects giving fine views over the garden, built-in ceiling speakers, built-in wardrobe, feature brick fireplace with display niches, built-in desk, fitted carpet.
Large En-Suite Bathroom
Comprising a panel enclosed bath with mixer tap, flush wc, vanity wash hand basin, complementary tiled surrounds, window to rear giving fine views over the entertaining area, segment radiator, mosaic tiled flooring.
Bedroom 4
11' 6" x 10' 11" (3.51m x 3.33m) with a window to rear giving fine views, built-in wardrobes, fitted carpet.
En-Suite WC
Comprising a flush wc, vanity wash hand basin, heated towel rail, fitted carpet.
Bedroom 5 (currently used as a study)
10' 1" x 8' 9" (3.07m x 2.67m) with a window to front, bespoke desk, joinery, shelving and cupboard space, solid oak flooring.
Family Bathroom
Comprising a tongue and groove panel enclosed bath with a mixer tap, flush wc, twin sinks set into a vanity unit, heated towel rail with segment radiator, window to rear.
Second Floor Playroom
35' 4" x 12' 10" (10.77m x 3.91m) this room can have many uses but is currently set up as a children’s playroom. With a window to rear giving fine views over the garden, Velux window to side, fitted carpet, bespoke oak and glass balustrades.
Bedroom 6
23' 10" x 12' 10" (7.26m x 3.91m) with a window to rear, Velux window to side, ceiling speakers, fitted carpet.
En-Suite Shower Room
Comprising a large walk-in shower cubicle with a glazed screen and wall mounted shower, vanity wash hand basin, flush wc., complementary tiled surrounds, heated towel rail, wooden effect flooring.
Dressing Room
12' 10" x 9' 9" (3.91m x 2.97m) with bespoke built-in wardrobes, ceiling speakers, radiator, fitted carpet.
Outside
Little Owls sits in a stunning plot of approximately 5.3 acres. Accessed via the sliding doors from the kitchen/family room is a paved outside entertaining area with a heated swimming pool and sunken firepit with built-in bench seating. Outside there are a number of outside speakers. From the patio there is access to a formal garden area which is nicely screened mature trees and planting. There is a further screened wild garden area, cricket practice net, various storage buildings and a second access via double opening wooden gates which lead to the rear of the property where there is a hard standing area and a further double storage garage, ideal for mowers etc. There is a further wooden mower shed and a shed housing a hopper for wooden pellets.
Covered Entertainment Area
13' 4" x 12' 8" (4.06m x 3.86m) an oak framed building with a tiled roof, views over the garden, swimming pool and entertaining area, built-in bar, power and light, stainless steel sink unit with a mixer tap, work surfaces, Wolf gas burner and barbecue. There are various stainless steel storage areas, fridges and outside heating.
Gym
24' 10" x 15' 0" (7.57m x 4.57m) with wooden effect flooring, exposed timbers to ceiling, two large Velux windows to ceiling, bi-folding doors to the entertaining area, lots of lighting.
Shower Room
Comprising a glazed shower cubicle with a wall mounted shower, flush wc, pedestal wash hand basin, window to side, access to loft space, wooden flooring.
Steam Room
Fully tiled with steam making and shower facilities, mosaic tiled bench seating, LED lighting, glazed screen to front.
Agents Note
This would make an ideal annexe, if required.
The Front
To the front of the property there is a large tarmacadam driveway providing parking for numerous cars, nicely screened off by mature hedging. This area is accessed via double opening electronically operated wooden gates.
Triple Garage
29' 6" x 19' 5" (8.99m x 5.92m) with a pellet fed boiler, gardeners wc, and a staircase leading to the first floor.
First Floor Studio
27' 0" x 13' 8" (8.23m x 4.17m) with a Velux window to side, further window to gable, two radiator, full power and light laid on.
En-Suite Bathroom
A white suite comprising a panel enclosed bath, low level flush wc., pedestal wash hand basin, double radiator, window to gable.
Agents Note
On the back slope of the garage are solar panels.
Local Authority
Uttlesford District Council
Band ‘H’
Why not speak to us about it? Our property experts can give you a hand with booking a viewing, making an offer or just talking about the details of the local area.
Find out the value of your property and learn how to unlock more with a free valuation from your local experts. Then get ready to sell.
Book a valuationLorem ipsum dolor sit amet, consectetuer adipiscing elit. Donec odio. Quisque volutpat mattis eros.
Lorem ipsum dolor sit amet, consectetuer adipiscing elit. Donec odio. Quisque volutpat mattis eros.
Lorem ipsum dolor sit amet, consectetuer adipiscing elit. Donec odio. Quisque volutpat mattis eros.