For Sale
Guide Price | #REF
£200,000
15 Marigold Place, Harlow, Essex, CM17 0BW
- 2 Bedrooms
- 1 Bathrooms
- 1 Receptions
Brockles Mead, Harlow
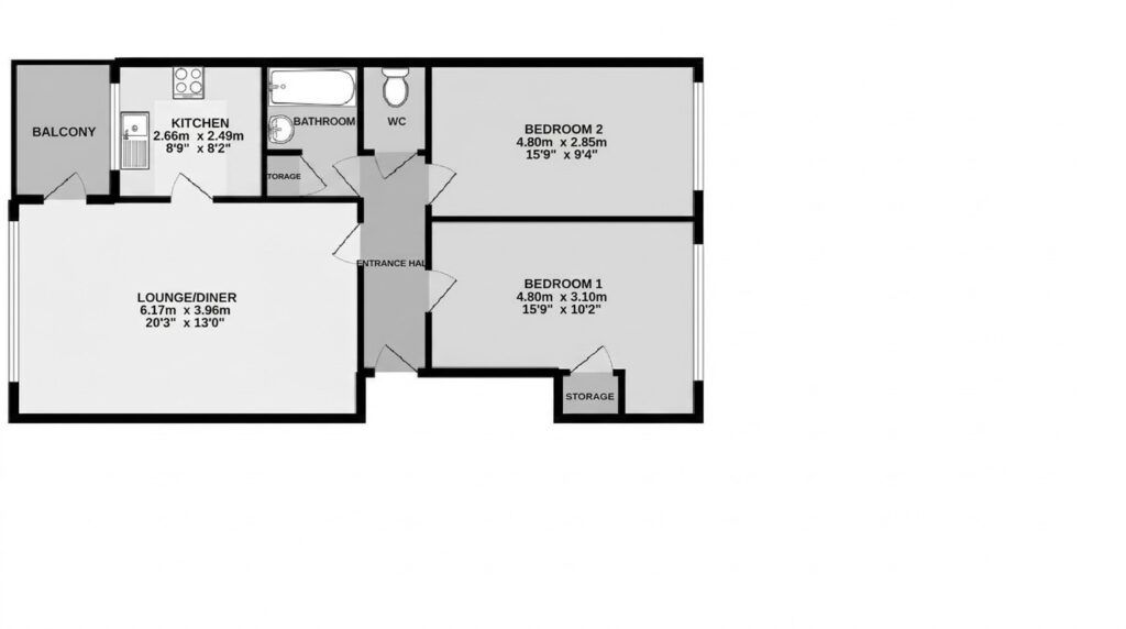
208 Brocklesmead is a top floor apartment which benefits from having a large living room, kitchen, small private balcony, two double bedrooms, bathroom and separate WC. This property offers a great potential investment opportunity as a rental property.
Entrance Hall
With wooden flooring, wall mounted double panelled radiator, wooden effect flooring, door leading into:
Living Room
19' 10" x 12' 8" (6.05m x 3.86m) with a window to rear, double panelled radiator, double radiator, tv aerial point, wooden effect flooring, door to small balcony area, door into:
Kitchen
8' 3" x 8' 2" (2.51m x 2.49m) with a double-glazed window to rear, stainless steel sink and drainer with a tap above and cupboard beneath, further range of base and eye level units with a rolled edge worktop and a tiled splashback surround, electric hob and oven beneath, space for washing machine, space for fridge.
Bedroom 1
16' 0" x 7' 4" (4.88m x 2.24m) with a double-glazed window to front, double panelled radiator, built-in cupboard, carpet.
Bedroom 2
13' 10" x 9' 4" (4.22m x 2.84m) with a window to front, radiator, built-in cupboards.
Separate WC
Comprising a flush WC, tiled walls and flooring.
Separate Bathroom
Comprising a panel enclosed bath with a mixer tap and shower attachment, wash hand basin, chrome heated towel rail, tiled walls and floor, built-in airing cupboard.
Lease
Approximately 86 Years Remaining
Maintenance
To be confirmed.
Local Authority
Harlow Council
Band ‘B’
Why not speak to us about it? Our property experts can give you a hand with booking a viewing, making an offer or just talking about the details of the local area.
Find out the value of your property and learn how to unlock more with a free valuation from your local experts. Then get ready to sell.
Book a valuation
Lorem ipsum dolor sit amet, consectetuer adipiscing elit. Donec odio. Quisque volutpat mattis eros.
Lorem ipsum dolor sit amet, consectetuer adipiscing elit. Donec odio. Quisque volutpat mattis eros.
Lorem ipsum dolor sit amet, consectetuer adipiscing elit. Donec odio. Quisque volutpat mattis eros.